Help Us Meet the Methow’s Growing Long-Term Care Needs
Expansion Campaign
Jamie’s Place is a home with a heart, in a community with a heart
The Methow Valley is a place of extraordinary natural beauty – with an extraordinarily caring community.
The people who love and contribute to this place deserve to be able to age in it with dignity and support. That’s you, and your loved ones, and your neighbors. It’s all of us. It’s more of us every year. Jamie’s Place is expanding to achieve our vision of meeting the long-term care needs of all Methow Valley elders and preparing the next generation of caregivers.
Our plan includes a new facility for leading-edge elder care, resolving the shortage of caregivers and a commitment to caring for our most vulnerable. Development is advancing quickly.
We need your help.
Make a Donation to the Expansion Campaign
What we need, and when
Our Vision is to:
Double our capacity by building a new, high-quality home for 24 elders
Create valued jobs for 30 caregivers
Establish a training hub to meet the demand for valley-wide care
Initiate an endowment to ensure sustainable support for financially vulnerable elders
Generous donors have already pledged $21 million toward our $24 million budget.
We must raise $3 million more over the next two years to achieve our vision. Our promise: We will always reserve 25% of our space for elders who lack the resources to afford our care.
The case for expansion - why?
-
People needing care are forced to leave the Valley
— Jamie’s Place’s waiting list typically contains 25 individuals seeking care, causing many who need care to move to other facilities outside of the Valley, away from friends and family.
— Average wait time prior to acceptance is three years
-
The elderly population of the Methow Valley is growing rapidly
— Percentage of people over age 65 in the Methow Valley is 32% (1,700 residents,) growing at 4 times the rate of the general population. This is expected to rise to 38% by 2035.
— 30% of people older than 65 in the Methow Valley lack the financial resources needed for quality, long term care (and comprise 50% of the Jamie’s Place waitlist).
— By 2030, the Valley will need a workforce to care for approximately 275 seniors who are either aging in place or need facility-based care.
-
Current facilities are not sustainable for future needs
— Elders are living at home longer, which leads to a higher level of care needs at Jamie’s Place.
— Constructed in 2007 and 2009, the existing two homes are inadequate to provide acute care, to meet greater physical-care needs safely and to accommodate new technologies.
— Two recent failures of the emergency sprinkler system resulted in a months-long evacuation and repairs.
— More revenue and better cost efficiencies create a strong, resilient business model.
Want to learn more about results of our Senior Assessment for Support and Housing study?
Our Path
Project elements
Three new solar-powered residential-style homes for 8 residents each (24 total) on 2+ acres in Twisp
Designed according to national standards for intentional and intimate (non-institutional) care – sunlight, hearth, great room, open kitchens, homey
Ample room sizes, rooms for couples, ADA compliant with enhanced safety equipment and enhanced line of sight
Nursing and physical therapy facilities to deliver a broad spectrum of care including low-to-high physical needs to memory care living (differentiated care in each of the three buildings)
Space and equipment for Valley-wide care-giver training and development
Enhanced interior spaces for meaningful elder engagement, community events, multi-purpose caregiver space and more storage; each building is connected through interior walk-ways
Expanded outdoor spaces within walking distance to Twisp town center and community life, Methow River, trails and transportation
Is the expansion sustainable?
The Jamie’s Place expansion plans lead to greater organizational financial strength and stability while honoring our treasured natural world.
In terms of financial sustainability, we expect:
Improved staffing productivity and efficiency due to new facility layout and eight room homes (vs. six room homes)
Solar and new-construction efficiencies that will lower ongoing costs of operation and maintenance
Increased cash flow with lower impact of individual resident turnover
Our design direction is informed by sustainable design and construction principles:
Energy efficiency through smart design and material choices
Water conservation
Waste reduction
Using sustainable building materials
Prioritizing indoor air quality
Incorporating renewable energy sources, such as net-zero rooftop solar
-

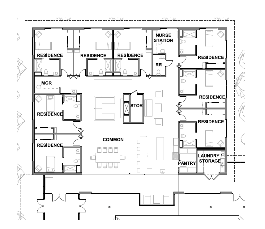
Floor Plan - East House Level 1
-

Single Occupant Unit Floor Plan
Cherishing our elders enriches our whole community
-
People age 50+ are beginning to consider their own long-term care goals, desires and needs. Knowing that quality, affordable care exists in the Methow Valley encourages long term commitment to Valley life, with the knowledge that people can grow old here while continuing to live meaningful lives. They can maintain friend, family and community connections through the very end of their days.
-
Families benefit when their loved ones are able to stay close to home with supportive, professional care. They can visit their loved ones easily, bring them into their homes for holidays and any occasion, share daily life with them and extend their time with them. They can continue to work knowing their loved ones are receiving the highest quality care possible, right here at home. Each resident has an average of eight family members in the Valley. With 24 residents at Jamie’s Place, that means nearly 200 people will directly benefit from the expansion!
-
High-quality elder care is very expensive. Many long-time Valley residents have spent their lives working, growing families and contributing to our community. Yet many lack the resources to sustain the last years of their lives in a healthy, safe environment, causing many to live in unsafe living conditions without adequate care at the end of their days. Everyone deserves to live the last chapter of their lives feeling cared for and respected, regardless of their financial resources. We need your help to do as much as we can, for as many as possible.
-
Offering a community space for enhanced caregiver training and development at Jamie’s Place enriches the pool of caregivers available to care for elders aging at home.
-
Like many rural areas, the Methow Valley has a caregiver workforce crisis. By 2030, the valley will need a workforce to care for an estimated 275 seniors who are either aging in place or need facility-based care. Expanding Jamie’s Place enhances existing programs to better educate and train local high school, vocational, community college and career-transitioning students, elevates the status of the caregiver profession and facilitates multi-generational connections between young adults and elders. We expect to train at least 12 caregivers each year in our new facility, offering a hub for well-paying, well-trained, highly respected caregiver jobs and creating a career path for advancement in the medical industry in the Methow Valley. Partnering with local housing experts to ensure affordable housing for caregivers ensures that caregivers can find community and thrive in the Methow.
-
With a growing, aging population, health care is an economic opportunity for our valley. Following the expansion, Jamie’s Place will spend most of its $1.4 million operating budget locally every year, fueling our economy. As an employer of nearly 30 people, we will stimulate economic development that will benefit the entire valley and county. We expect 80% of the $20 million in construction costs to be spent in the Methow Valley, supporting local businesses. Further, Jamie’s Place’s quality care enables families to remain in the workforce when they would otherwise have to care for loved ones.
Elders living their best lives
-

Elders helping in the kitchen
-

Spring planting in the garden
-

Little Star visits for Halloween
-

Making art with Creative Aging
-

Local musician visits
-

Keeping spouses together
-

Independent elder outings
-

Sharing their stories with community
Your Neighbors, Committed to Community Care
Jamie’s Place Administrative Staff
Jessica Kulsrud, Associate Director
Jamie’s Place Board Members
Melinda Pruett-Jones, Chair
Sharmon Figenshaw
Peggy Porter, MD
Cindy Perryman
Mary Beth Foglia
Natalie Kuehler
Design Build Committee
Gary Galeucia
Melinda Pruett-Jones
Jay Neal
Jessica Kulsrud
Construction Consultants
Jamie Stewart
Tom Owens
Expansion Campaign
Steering Committee
Jill Sheley, Director
Anita Lince, Assistant
Betsy Cushman
Patty Spencer
Steve Devin
Joan Wellman
Mary Johnston
Peggy Porter
Jane Hill
Heidi de Laubenfels
Jane Gilbertsen
Raleigh Bowden, MD
Laura Ruud
Architect
Johnston Architects
General Contractor
Brandenburg Construction